Modern und dennoch von traditioneller Bauweise inspiriert, zeigt sich NEXT Wood 75W mit dem markanten Walmdach. Das bietet beachtliche Lagerfläche unter dem Dach für all die Dinge, die man nur saisonal benötigt. Der breite Dachüberstand schützt die Fassade vor Witterungseinflüssen und ist zugleich ein guter Hitzeschutz im Sommer. Eine große, auf einem Pfeiler ruhende Eingangsüberdachung ist integriert.
Der Zusatz „Wood“ im NEXT by Danwood-Hausprogramm kennzeichnet Modulhäuser, deren Rahmenkonstruktion vollständig aus Holz statt aus Stahl besteht.
*Abbildungen zeigen teilweise individuelle Zusatzausstattung.
Hausstandard NEXT
Vollständige Baubeschreibung und Materialspezifikation.

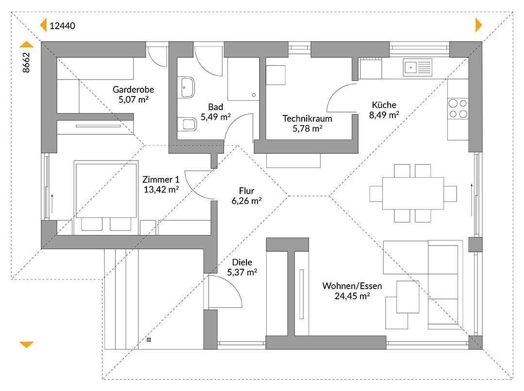
Grundrisse
Kompletter Plan aller Etagen mit Fläche
Das innovative Danwood-Modulbauprogramm bietet smarte schlüsselfertige Modulhäuser in moderner Architektur mit viel Glas, die komplett bis ins Detail im Werk vorgefertigt werden. Sie punkten mit kürzerer Lieferzeit und einer Aufbauzeit von drei Wochen. Ihr Alles-Inklusive-Konzept umfasst modernste Haustechnik, höchste Energieeffizienz und ausgesuchtes Innendesign.

Sogar fremde Leute haben uns im Ort angesprochen, wie schön unser Haus ist. Klar macht einen das stolz.