• next_next75FT_2.jpg
  • next_next75FT_1.jpg
NEXT

Hausprojekt

NEXT Wood 75FT

278.400

Das ist der Preis für ein schlüsselfertiges Haus. Sehen Sie hier alle Inklusivleistungen.

Andere Varianten dieses Gebäudes:

Danwood-Berater finden

Nutzen Sie die Unterstützung eines Spezialisten in Ihrer Region!

Beispiel: 12345
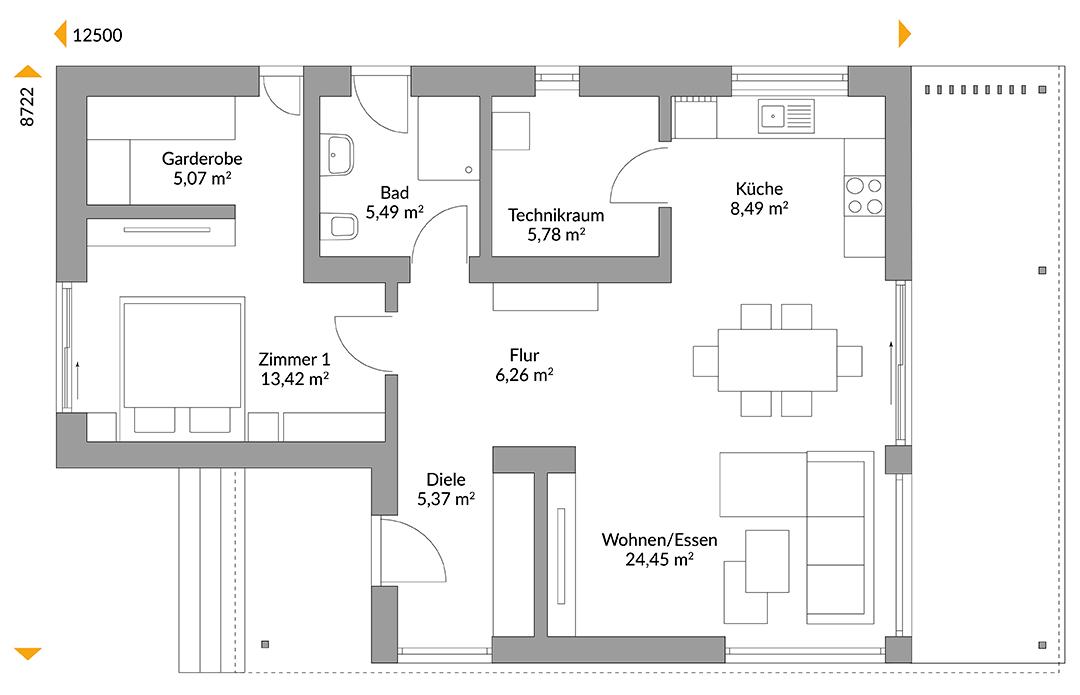
  • Fläche74,33
  • Geschosse1
  • Schlafzimmer2
  • Badezimmer1
  • Ankleide1
  • Breite8,72m
  • Länge12,5m
  • Höhe3,6m
  • Dachneigung2°
  • GarageNein

NEXT Wood 75FT verlängert Ihre Outdoor-Saison: Eine ganze Hausseite ist großzügig überdacht und schützt Ihren Terrassenplatz nicht nur vor zu viel Sonne, sondern auch vor kurzen Regenschauern. Sitzpolster können hier übernachten und Terrassenmöbel überwintern. Und falls Sie Ihr Flachdach begrünen möchten, ist das ein kleiner, aber schöner Beitrag zum Klimaschutz.

Der Zusatz „Wood“ im NEXT by Danwood-Hausprogramm kennzeichnet Modulhäuser, deren Rahmenkonstruktion vollständig aus Holz statt aus Stahl besteht.

*Abbildungen zeigen teilweise individuelle Zusatzausstattung.

  • Technikpaket NEXT (Luft-Wasser-Wärmepumpe mit Fußbodenheizung und zentraler Lüftungsanlage) ab Oberkante Bodenplatte
  • Lüftungsanlage mit Wärmerückgewinnung
  • Malerarbeiten
  • Fliesen
  • Vinylboden
  • Sanitärausstattung
  • Elektr. Rollläden & Smart Home
  • Photovoltaikanlage mit Speicher
  • NEXT Wood: Technikpaket (Luft-Wasser-Wärmepumpe mit integriertem Warmwasserspeicher, 180L und kontrollierte Lüftungsanlage mit Wärmerückgewinnung (Zuluft und Abluft zentral)).
  • NEXT Wood: Inklusiv 1 bzw. 2 Elektro-Handtuchheizkörper. Bei Häusern mit einem Bad - Ein Elektro-Handtuchheizkörper ist im Preis enthalten. Bei Häusern mit zwei Bäder - Zwei Elektro-Handtuchheizkörper sind im Preis enthalten.
  • NEXT Wood: Inklusiv Photovoltaik-Anlage mit einem Energiespeichersystem und Fußbodenheizung.
  • Erdgeschoss74,33
  • Wohnen/Essen24,45
  • Küche8,49
  • Diele5,37
  • Flur6,26
  • Zimmer 113,42
  • Garderobe5,07
  • Bad5,49
  • Technikraum5,78

Grundrisse

Innenräume

NEXT

Linie NEXT

Das innovative Danwood-Modulbauprogramm bietet smarte schlüsselfertige Modulhäuser in moderner Architektur mit viel Glas, die komplett bis ins Detail im Werk vorgefertigt werden. Sie punkten mit kürzerer Lieferzeit und einer Aufbauzeit von drei Wochen. Ihr Alles-Inklusive-Konzept umfasst modernste Haustechnik, höchste Energieeffizienz und ausgesuchtes Innendesign.

Entdecken Sie die Hauslinie NEXT

Weitere Projekte

 
 
 
 
 
 
 
 
 
 
 
 
 
 
 

Gebautes Vertrauen – mit jedem einzelnen Haus.

Sogar fremde Leute haben uns im Ort angesprochen, wie schön unser Haus ist. Klar macht einen das stolz.