Zweigeschossiges Haus mit Eingangsüberdachung der höheren Haustür und zwei Zimmern und separater Garderobe im Obergeschoss. Wannenbad mit Dusche und Doppelwaschbecken. Das erhöhte Erdgeschoss mit Eckverglasung und höheren Fenstern ist als offene Küche/ Wohnen/ Essen mit Schiebetüren zur Terrasse konzipiert. Gäste-WC , Technikraum und Diele, Flur, Zeltdach mit breiter Traufe von 60 cm und 22° Dachneigung.
*Abbildungen zeigen teilweise individuelle Zusatzausstattung.
Hausstandard S-Linie
Vollständige Baubeschreibung und Materialspezifikation.

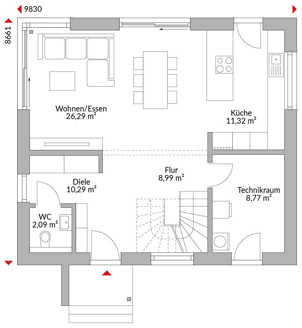
Grundrisse
Kompletter Plan aller Etagen mit Fläche
Willkommen bei der S-Linie von Danwood, der neuen Dimension des Wohlfühlens. Diese exklusive Serie hebt sich nicht nur durch ihr einmaliges architektonisches Design ab, sondern auch durch eine besondere funktionale Gestaltung, die jedem Wohnraum eine außergewöhnliche Qualität verleiht. Jedes Haus unserer S-Linie zeichnet sich durch eine Reihe von besonderen Merkmalen aus, die für ein luxuriöses Wohnerlebnis sorgen.

Sogar fremde Leute haben uns im Ort angesprochen, wie schön unser Haus ist. Klar macht einen das stolz.