• family_family142.jpg
  • family_family142_2.jpg
Family

Hausprojekt

Family 142 V1

226.100

Sehen Sie hier alle Inklusivleistungen.

Danwood-Berater finden

Nutzen Sie die Unterstützung eines Spezialisten in Ihrer Region!

Beispiel: 12345
  • Fläche141,98
  • Geschosse1.5
  • Schlafzimmer5
  • Badezimmer1
  • Ankleide1
  • Breite8,45m
  • Länge10,38m
  • Höhe8,3m
  • Dachneigung40°
  • Kniestockhöhe100m
  • GarageNein

Das Family 142 überzeugt als elegantes, geräumiges Einfamilienhaus mit verschiedenen Grundrissvarianten, um unterschiedlichen Bedürfnissen und Stilen gerecht zu werden. In seiner Außenansicht modern designt mit Satteldach, großen Fenstern und einer Terrasse, die zum Verweilen einlädt.

Die Grundrisse im Erdgeschoss variieren, bieten jedoch immer einen großzügigen Wohn- und Essbereich, der das Herzstück des Hauses darstellt, eine gut dimensionierte Küche, ein separates Gäste-WC und einen Technikraum im Erdgeschoss. Im Obergeschoss befinden sich gleich vier Schlafzimmer und ein großzügiges Wannenbad mit Dusche für private Momente für jedes Familienmitglied. Für die Eltern gibt es im Schlafzimmer ein besonderes Bonbon - eine begehbare Ankleide.

*Abbildungen zeigen teilweise individuelle Zusatzausstattung.

  • Technikpaket FAMILY inkl. Fußbodenheizung (Luft-Wasser-Wärmepumpe mit Fußbodenheizung und zentraler Lüftungsanlage)
  • Lüftungsanlage mit Wärmerückgewinnung
  • Elektropaket - Steckdosen und Lichtschalter, Deckenlichtanschlüsse innen und außen, Netzwerkanschlüsse und TV-Anschlüsse, Anschlüsse für Küchen- und Haushaltsgeräte
  • Fliesen
  • Sanitärausstattung
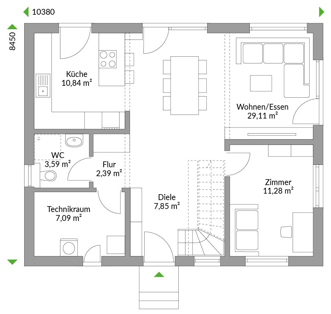
  • Erdgeschoss72,15
  • Diele7,85
  • Flur2,39
  • Wohnen/Essen29,11
  • Küche10,84
  • Zimmer11,28
  • WC3,59
  • Technikraum7,09
  • Dachgeschoss69,83
  • Flur 110,64
  • Zimmer 111,06
  • Zimmer 210,11
  • Zimmer 310,28
  • Zimmer 411,24
  • Garderobe6,29
  • Bad10,21

Grundrisse

Innenräume

Family

Linie Family

Mit unserem DAN-WOOD Family-Programm sparen Sie mehrfach: Dank des hohen Vorkonfigurationsgrad am Hauspreis, der  klimafreundlichen Bauweise mit günstiger Finanzierung und moderner Haus- und Heiztechnik bei den Heizkosten. Wählen Sie Ihren Wunschhaustyp - ob Bungalow, eineinhalbgeschossiges Haus oder schöner Zweigeschosser.

Entdecken Sie die Hauslinie Family

Weitere Projekte

 
 
 
 
 
 
 
 
 
 
 
 
 
 
 

Gebautes Vertrauen – mit jedem einzelnen Haus.

Sogar fremde Leute haben uns im Ort angesprochen, wie schön unser Haus ist. Klar macht einen das stolz.