• family_family103.jpg
  • family_family103_2.jpg
Family

Hausprojekt

Family 103 V1

186.300

Sehen Sie hier alle Inklusivleistungen.

Danwood-Berater finden

Nutzen Sie die Unterstützung eines Spezialisten in Ihrer Region!

Beispiel: 12345
  • Fläche102,48
  • Geschosse1.5
  • Schlafzimmer2
  • Badezimmer1
  • Breite7,4m
  • Länge8,8m
  • Höhe7,39m
  • Dachneigung40°
  • Kniestockhöhe100m
  • GarageNein

Erleben Sie das DAN-WOOD Family 103 – ein modernes Einfamilienhaus, das Komfort und Eleganz vereint. Mit seiner zeitlosen Architektur und großen Fensterfronten bietet es eine lichtdurchflutete, einladende Atmosphäre. Das Erdgeschoss überzeugt durch einen offenen Wohnbereich und eine moderne, großzügige Küche, ideal für gemeinsame Familienmomente. Im Obergeschoss finden sich drei geräumige Schlafzimmer, die jedem Familienmitglied Privatsphäre bieten. Zusätzliche Annehmlichkeiten wie ein Gäste-WC und ein Hauswirtschaftsraum sorgen für höchsten Wohnkomfort.

*Abbildungen zeigen teilweise individuelle Zusatzausstattung.

  • Technikpaket FAMILY inkl. Fußbodenheizung (Luft-Wasser-Wärmepumpe mit Fußbodenheizung und zentraler Lüftungsanlage)
  • Lüftungsanlage mit Wärmerückgewinnung
  • Elektropaket - Steckdosen und Lichtschalter, Deckenlichtanschlüsse innen und außen, Netzwerkanschlüsse und TV-Anschlüsse, Anschlüsse für Küchen- und Haushaltsgeräte
  • Fliesen
  • Sanitärausstattung
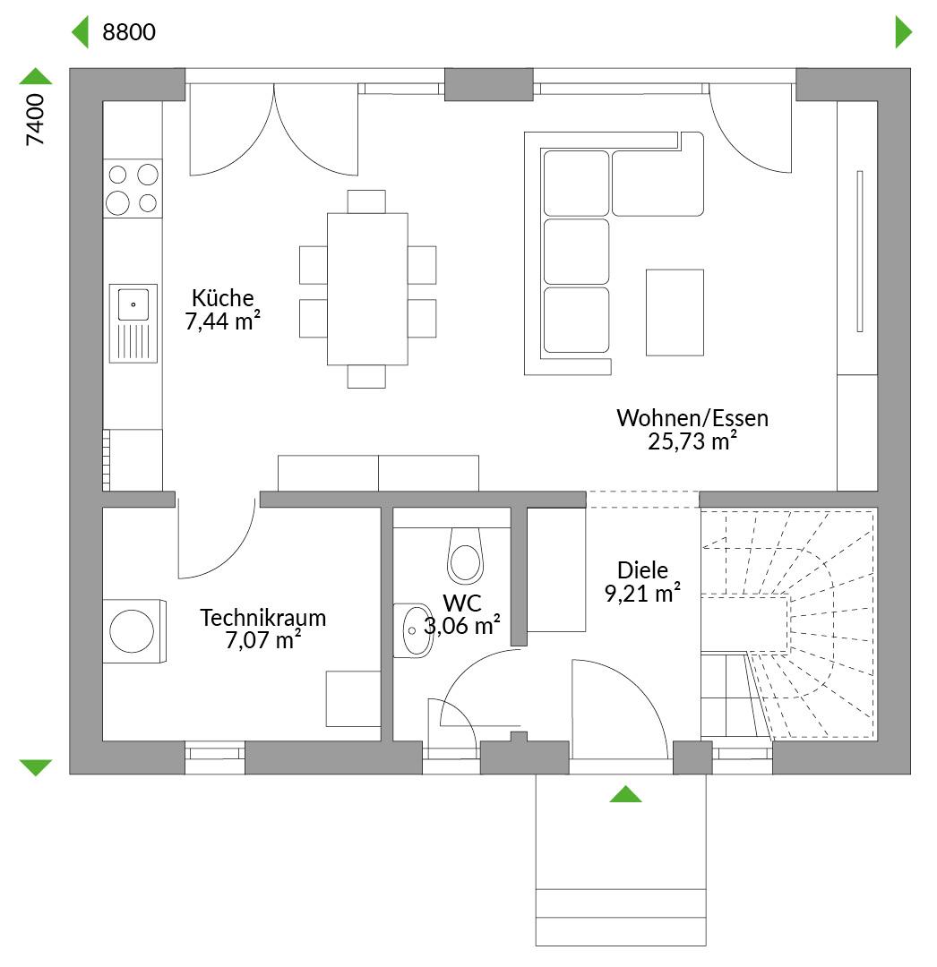
  • Erdgeschoss52,51
  • Diele9,21
  • Wohnen/Essen25,73
  • Küche7,44
  • Technikraum7,13
  • WC3
  • Dachgeschoss49,97
  • Flur10,74
  • Zimmer 115,51
  • Zimmer 212,55
  • Bad8,04
  • Abstellraum3,13

Grundrisse

Innenräume

Family

Linie Family

Mit unserem DAN-WOOD Family-Programm sparen Sie mehrfach: Dank des hohen Vorkonfigurationsgrad am Hauspreis, der  klimafreundlichen Bauweise mit günstiger Finanzierung und moderner Haus- und Heiztechnik bei den Heizkosten. Wählen Sie Ihren Wunschhaustyp - ob Bungalow, eineinhalbgeschossiges Haus oder schöner Zweigeschosser.

Entdecken Sie die Hauslinie Family

Weitere Projekte

 
 
 
 
 
 
 
 
 
 
 
 
 
 
 

Gebautes Vertrauen – mit jedem einzelnen Haus.

Sogar fremde Leute haben uns im Ort angesprochen, wie schön unser Haus ist. Klar macht einen das stolz.