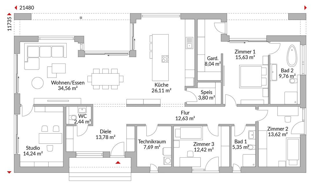
Bungalow mit zurückgesetztem Eingangsbereich zur Überdachung der höheren Haustür. Durch Dachvorsprung überdachte Terrasse im Gartenbereich. Das höhere Erdgeschoss im Essbereich mit seinen höheren Fenstern ist als offene Küche mit Speisekammer/ Wohnen/ Essen konzipiert - mit Schiebetüren zur Terrasse und in den Garten. Separates Studio für Gäste oder als Homeoffice. Drei Schlafzimmer, davon ein Masterbad mit Bad en Suite und begehbarer Garderobe. Alle Schlafzimmer mit Zugang nach draußen. Zusätzliches Duschbad sowie Gäste-WC. Technikraum, Diele und Flur.
*Abbildungen zeigen teilweise individuelle Zusatzausstattung.
Hausstandard S-Linie
Vollständige Baubeschreibung und Materialspezifikation.

Grundrisse
Kompletter Plan aller Etagen mit Fläche





Willkommen bei der S-Linie von Danwood, der neuen Dimension des Wohlfühlens. Diese exklusive Serie hebt sich nicht nur durch ihr einmaliges architektonisches Design ab, sondern auch durch eine besondere funktionale Gestaltung, die jedem Wohnraum eine außergewöhnliche Qualität verleiht. Jedes Haus unserer S-Linie zeichnet sich durch eine Reihe von besonderen Merkmalen aus, die für ein luxuriöses Wohnerlebnis sorgen.

Sogar fremde Leute haben uns im Ort angesprochen, wie schön unser Haus ist. Klar macht einen das stolz.