Bungalow mit vollständig überdachtem Eingangsbereich und höherer Eingangstür mit Sichtfenster. Von außen zusätzlich direkter Zugang zur Küche. Das höhere Erdgeschoss mit seinen höheren Fenstern ist als offene Küche mit anschließendem Wohn-/Essbereich und Schiebetür zu Terrasse konzipiert. Walmdach ohne Dachüberstand, 25° Dachneigung.
*Abbildungen zeigen teilweise individuelle Zusatzausstattung.
Hausstandard S-Linie
Vollständige Baubeschreibung und Materialspezifikation.

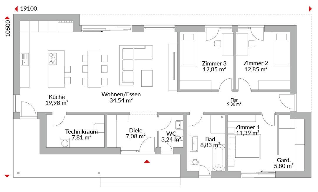
Grundrisse
Kompletter Plan aller Etagen mit Fläche
Willkommen bei der S-Linie von Danwood, der neuen Dimension des Wohlfühlens. Diese exklusive Serie hebt sich nicht nur durch ihr einmaliges architektonisches Design ab, sondern auch durch eine besondere funktionale Gestaltung, die jedem Wohnraum eine außergewöhnliche Qualität verleiht. Jedes Haus unserer S-Linie zeichnet sich durch eine Reihe von besonderen Merkmalen aus, die für ein luxuriöses Wohnerlebnis sorgen.

Sogar fremde Leute haben uns im Ort angesprochen, wie schön unser Haus ist. Klar macht einen das stolz.